PV TECH Etiquetas
(31) 3653-1185
Menu
HOME
QUEM SOMOS
PRODUTOS
SOLICITE UM ORÇAMENTO
Etiquetas para Laboratório / Baixas Temperaturas
Couchê
Bopp
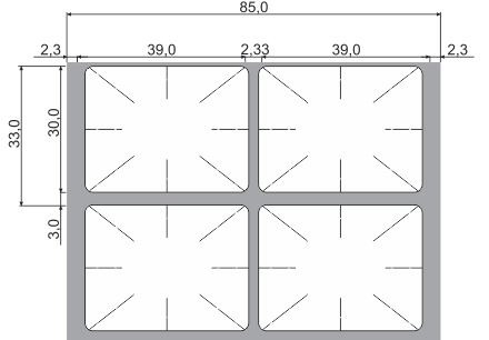
39×30
Etiquetas para Laboratório / Baixas Temperaturas
←
Etiquetas para confecção de roupas e tecidos
Etiquetas para Jóias
→
Open chat